現在の計画案(2025年9月頃)

細部のデザインが変わっている。高さなども多少変わった可能性がある。

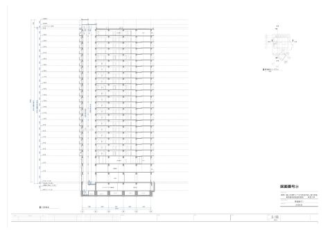
以前の計画案(2025年4月頃)

前回と比較して、ホバリングスペースが無くなったように見える。

各寸法は以下の通り。(平均GL、設計GLについては注記など参照)

項目基準長さ図面での表記・備考
棟屋屋上スラブ高さ設計GL86.640m左の寸法、「PHRFSL」
パラペット高さ平均GL83.350m中央の寸法「最高の高さ」(=建築物高さ)、「パラペット天端」。
屋上スラブ高さ平均GL82.350m右の寸法「最高の軒の高さ」、「RFSL」
棟屋部分のパラペットの高さ-約0.6m寸法線なし
平均GL-2.20「本棟平均GL」
設計GL-2.90平均GLとの差:0.700m(他の寸法差より)

この場合、最高高さと主要部高さは次のようになる。
最高高さ
(棟屋パラペット天端)
平均GL約87.9m
設計GL約87.2m事業計画書(2025年4月版)では「高さ約87m」との記載。
主要部高さ
(パラペット高さ)
平均GL83.350m
設計GL82.650m

以前の計画案(2023年4月頃)

テナント部分が3階までに変更された。

設計GLベースで、最高高さ88.100m、主要部高さ83.100m、建築物高さ83.100m。

以前の計画案(2022年1月頃)

若干デザインが変わったが、建物としては大きく変更されていないように見える。

以前の計画案(2019年8月頃)

テナント部分が4階までに変更された。棟屋付近の構造は不明だが、写り込んでる影の形状からすると以前の案と同様か?

以前の計画案(2018年7月頃)

24階建て、最高高さ80m程度か。